”めい”が”トトロ”に初めて出会ったあのシーン…”トトロ”のような建築をつくり”めい”のようにクライアントをワクワクさせたい…大島功市建築研究所でお茶でも飲みながら建築のお話しませんか!!!








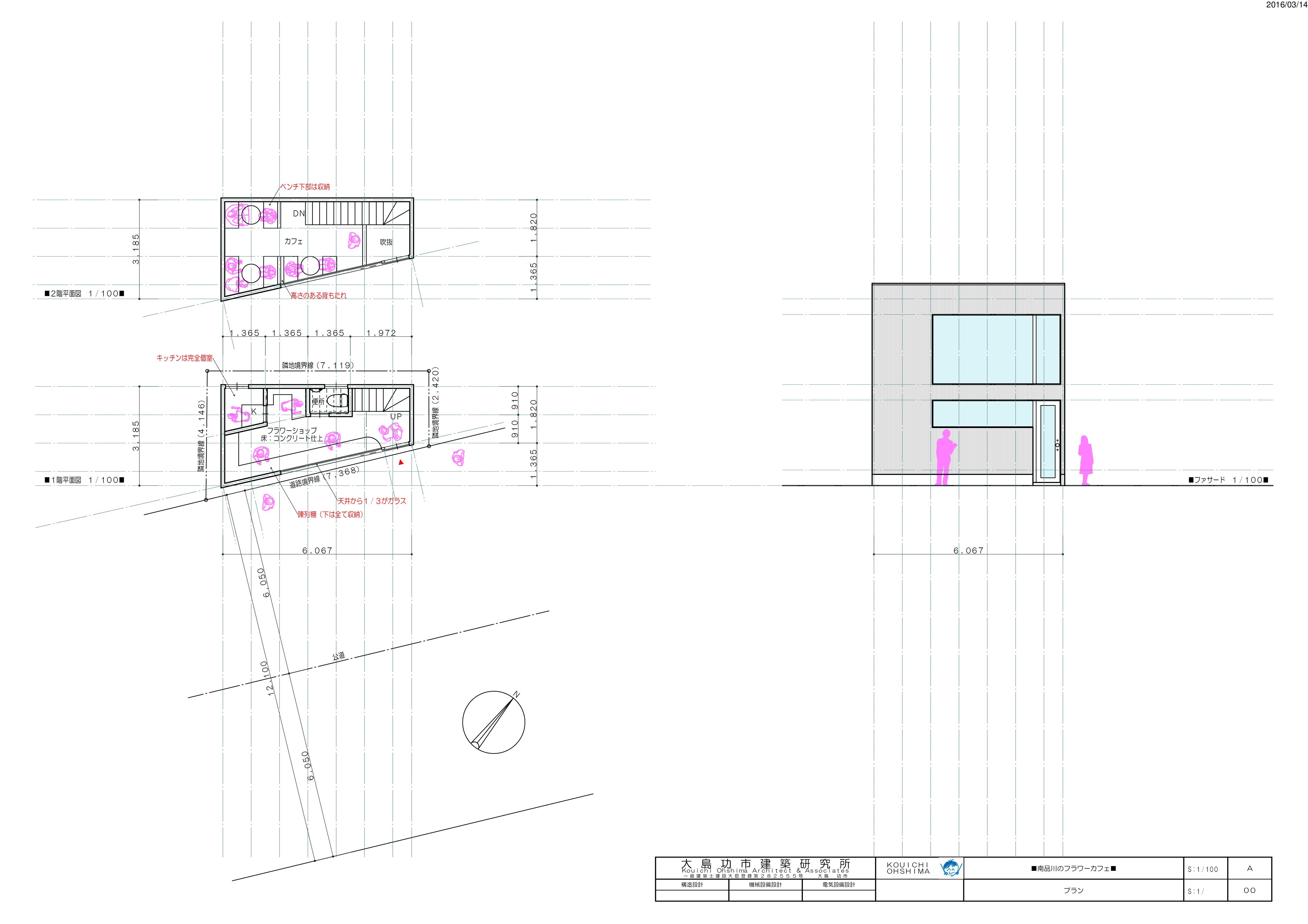
南品川のフラワーカフェ
東京都品川区に計画されたカフェを併設したお花屋さん…
敷地面積7坪…延べ坪5.5坪の超狭小建築(≧◇≦)
”めい”が”トトロ”に初めて出会ったあのシーン…”トトロ”のような建築をつくり”めい”のようにクライアントをワクワクさせたい…大島功市建築研究所でお茶でも飲みながら建築のお話しませんか!!!








クライアントの夢・設計者の夢・施工者の想い…たくさんの想いが込められた建築&デザインを東京都国分寺市/お鷹の森から発信!!!
〒185-0022東京都国分寺市東元町3-19-9本多ナンバーワン(東京事務所)/〒310-0851 茨城県水戸市千波町464-39 A棟103(茨城事務所)/tel.fax:
042-326-2233 /ohkokk@yahoo.co.jp
製作:お鷹の森の建築家/大島功市(設計事務所/大島功市建築研究所/一級建築士事務所) from 国分寺/お鷹の森のアトリエ
★Copyright (C) 2001 Kouichi Ohshima all rights
reserved.★このサイトに掲載の文章・画像の無断転載を禁じます★