”めい”が”トトロ”に初めて出会ったあのシーン…”トトロ”のような建築をつくり”めい”のようにクライアントをワクワクさせたい…大島功市建築研究所でお茶でも飲みながら建築のお話しませんか!!!








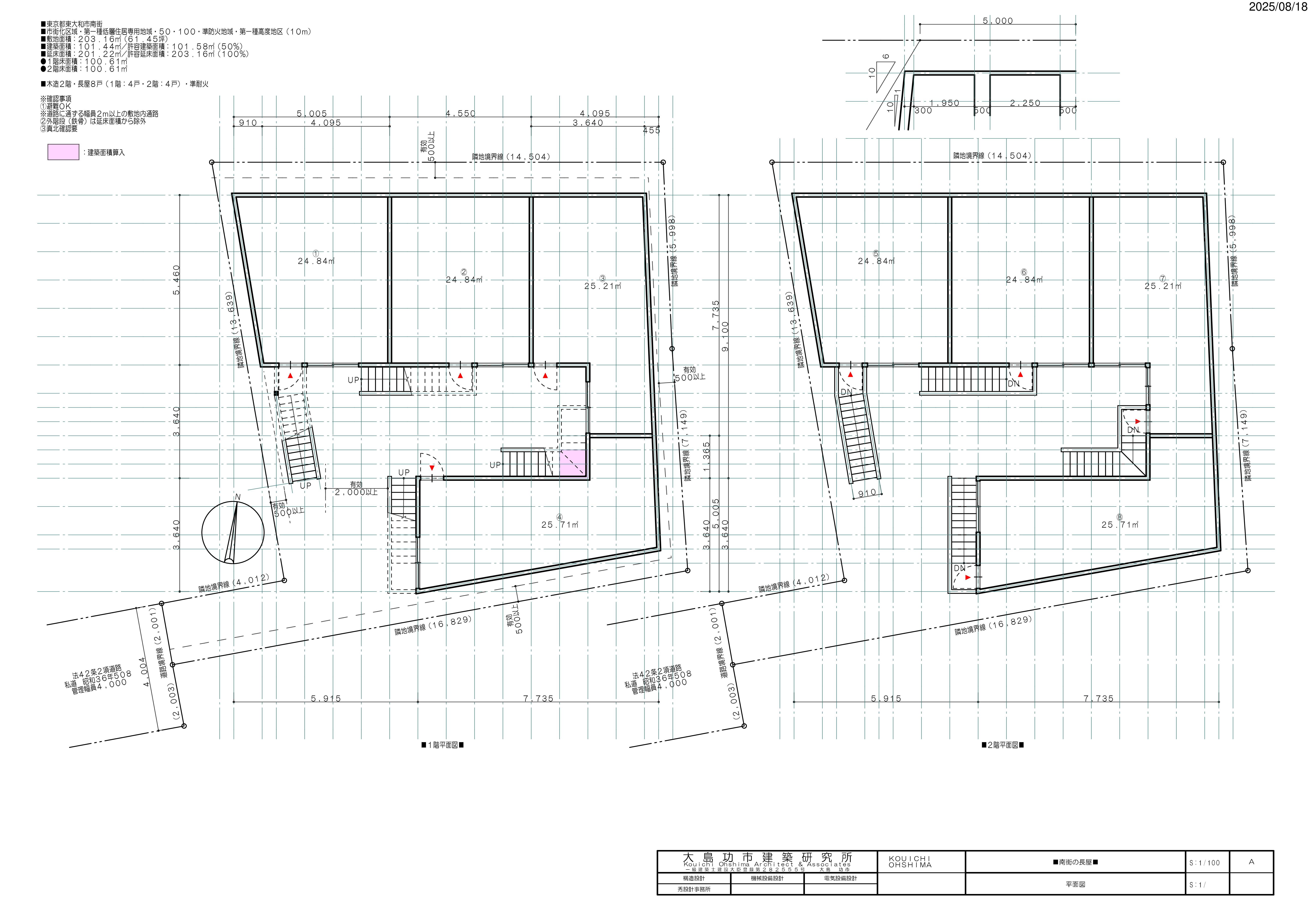
南街プロジェクト
■所在地 東京都東大和市
■設計監理 大島功市建築研究所 大島功市
■設計期間 202506〜
■竣 工 未定
■主体構造 木造
■階数 未定
■敷地面積
■建築面積
■延床面積
■主要用途 長屋or共同住宅
■構造設計
■設備設計
■電気設計
■施工会社 葛燒建設
長屋プランと共同住宅プランを検討しました!
”めい”が”トトロ”に初めて出会ったあのシーン…”トトロ”のような建築をつくり”めい”のようにクライアントをワクワクさせたい…大島功市建築研究所でお茶でも飲みながら建築のお話しませんか!!!








クライアントの夢・設計者の夢・施工者の想い…たくさんの想いが込められた建築&デザインを東京都国分寺市/お鷹の森から発信!!!
〒185-0022東京都国分寺市東元町3-19-9本多ナンバーワン(東京事務所)/〒310-0851 茨城県水戸市千波町464-39 A棟103(茨城事務所)/tel.fax:
042-326-2233 /ohkokk@yahoo.co.jp
製作:お鷹の森の建築家/大島功市(設計事務所/大島功市建築研究所/一級建築士事務所) from 国分寺/お鷹の森のアトリエ
★Copyright (C) 2001 Kouichi Ohshima all rights
reserved.★このサイトに掲載の文章・画像の無断転載を禁じます★